top of page


Acacia
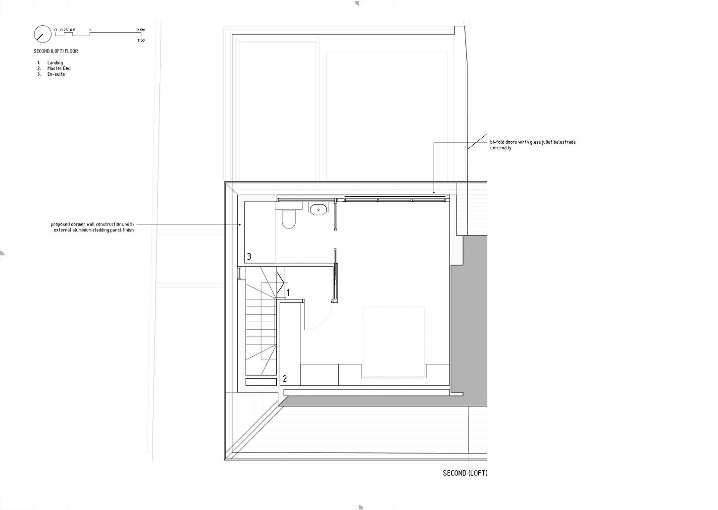
The proposed enhancements to the existing property include the demolition of the current single-storey rear extension and the construction of a new full-width single-storey extension with an increased depth extending into the garden. Additionally, the project entails the conversion of the existing loft space to accommodate an additional habitable bedroom on the second floor.
Complete
Status
2021
Year
Bath, UK
Location
Residential
Sector
:
:
:
:

bottom of page



































